RELEVE DE MESURES / PLANS EDL / PLANS INTERVENTION

Publié par SEO060109 le

BUREAU ETUDE SECOND OEUVRE

RELEVE DE MESURES PLANS EDL ET D'INTERVENTION

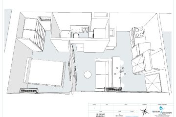
Déplacement pour un nouveau relevé de mesures dans ce grand bâtiment de 5 niveaux sur GAP suivi d’une mise à jour du plans d’intervention :
Commissariat et centre des impôts m’ont demandés 4 grosses journées de relevés et 20 jours de mises en plans DWG pour mettre à jour 3 niveaux du ce bâtiment.
ETAPE 1 : Croquis et relevé de mesure complet du centre avec un maximum de photos et vidéos utiles en cas d’interrogation.
• Prise de mesures des murs périphériques, cloisons, hauteur sous faux plafond et sous dalle, escalier, éléments sanitaires, …
• Vérifier avec une équerre adapté l’angle des murs et la triangulation des pièces
• Repérer les murs porteurs, les épaisseurs, les gaines, les poutres, etc
• Placer les menuiseries extérieurs
• Noter l’emplacement des éléments sanitaire
ETAPE 2 : La mise au propre et à l’échelle en PDF et DWG

ETAPE 3 : Diffusion des plans aux prestataires et client qui servirons pour :

– la coordination SSI
– l’implantation des équipements de sécurité
– les travaux du nouveau système de sécurité incendie
– Les autres travaux de rénovation et d’agencement
ETAPE 4 : Reprise et mise à jours des plans d’interventions pour la sécurité du bâtiment
BUREAU ETUDE SECOND OEUVRE
Catégories : Par défaut