RELEVE ET PLANS A L’ECHELLE

Publié par SEO060109 le

BUREAU ETUDE SECOND OEUVRE

RELEVE ET PLANS A L'ECHELLE

Déplacement sur à la station de MONTGENEVRE pour un relevé de mesure de la régie ainsi que de la Mairie.
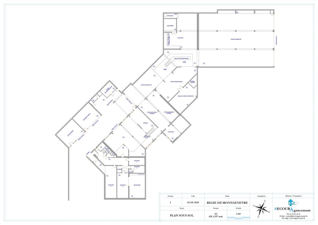
Etablissement de 4 immenses niveaux divisés en plusieurs secteurs.
– Un sous sol avec le garage des dameuses, le garage des véhicules, un atelier de mécanique, les vestiaires
– Un RDC avec les billetterie des forfaits, la maintenance et l’exploitation de la station
– Un 1er étage avec les bureaux de la régie et de la Mairie
– Un 2eme étage avec salle de réunion, cuisine, bureaux, appartements
– Nous avons aussi accédé au comble pour un éventuelle aménagement
Il nous aura fallu 4 grosses journées sur place pour le relevé de mesures et 20 jours de DWG pour la mise à l’échelle de l’état des lieux.
Nos plan servirons aux équipes de sécurité incendie ainsi qu’a l’élaboration d’un nouvelle agencement :
– la coordination SSI
– l’implantation des équipements
– les travaux du nouveau système de sécurité incendie
– Les autres travaux de rénovation et d’agencement
BUREAU ETUDE SECOND OEUVRE
BUREAU ETUDE SECOND OEUVRE
Catégories : Par défaut